瀟洒な佇まい 「パークハウス一番町」
平成23年4月竣工、旧三菱地所分譲マンション「パークハウス一番町」
一番町の高台に建つ瀟洒な佇まいのマンションです。
14階建てで24住戸という小さなコミュニティのような雰囲気があります。

エントランスはとても落ち着いた感じがします。
ガラスの向こうに大きな石が見えるのですが、何か謂れのあるものなんでしょうか?
ちょっと気になりますね。

901号室をご案内いたします。
まだ原状回復工事前に撮ったものですので、壁などにところどころ
チェックのためのシールが見られますがご容赦くださいませ。
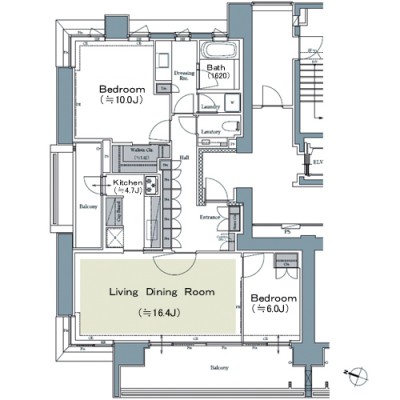
お部屋の間取り図をご覧ください。

お部屋のドアを開けると人造大理石のエントランスです。
廊下まで続いています。思わずなるべく端っこで靴を脱いでしまいますね。
廊下に沿った壁面収納には可動式棚もたくさん付いているので
こまごまとしたしたものを収納出来そうです。



リビングは南西向きで大きくベランダに向かって開かれていて
とても気持ちがいいです。
リビング・ダイニングには床暖房がついています。
リビングからの眺望です。


引き戸で仕切るタイプのキッチンは、食洗器はもちろん、ディスポーザーも
ついています。また、サービスバルコニーへ出ることができ、網戸もついて
いますので、キッチンにお料理の匂いがこもったようなときは開けられて
便利ですね。


洗面所にも窓、浴室にも窓、マンションには珍しい風通しの良いお部屋です。
1フロアに2住戸だから、どちらも角部屋の良さを味わえます。


主寝室は約10帖、ウォークインクローゼットは約2帖ほどの広さがあり、
お洋服がたっぷりと収納できそうです。



リビング隣のベッドルームは約6帖です。
約1.5mくらいある広いバルコニーに面していて、掃き出しの窓が
大きく明るいため狭さを感じませんでした。


いかがでしたか?
壁のマーキングテープが少し気になってしまったでしょうか?
原状回復工事が終われば、綺麗になりますのでご安心くださいませ。
「パークハウス一番町」は南法眼坂を上ってきた一番町の高台に
ありますが、お隣やお向かいには「フォーシーズンズグランデ一番町」
「ホーマットイースト」「一番町マナーハウス」そして2016年11月に
竣工した新築マンション「ブランズ ザ・ハウス一番町」とどれも素敵な
マンションが連なっています。
お部屋はもちろん素敵ですが、それぞれのマンションの外観を見ながら
そぞろ歩きをするのもお勧めです。

(清水)
番町探検レポーターが行く!『パークハウス一番町901号室』
こんにちは!
番町探検レポーターのユカと娘のりんかです♪
これからパークハウス一番町901号室の物件見学にいってきまーす!
(パークハウス一番町901号室の詳細はこちら)
市ヶ谷駅からお部屋まで歩いて行くと、
けっこう大きめの公園・東郷公園と児童館を通りました★

幼稚園前のお子さんをお持ちの方には公園と児童館が近いってのは重要ですよね~(#^.^#)
さて、物件に到着です(^^)/
外観はこんなかんじ↓

まず物件に到着してびっくりしたのはセキュリティーのすごさ!
エントランスに入るのにロックがかかっているは普通ですが、
ロビーからエレベーターに入る扉、エレベーターを動かすのにも鍵が必要なんです!
すごく念入りです…

ロビーだけでなく各階の廊下にも暖房が入ってるんですよ~!

そしてお部屋に入ると天然石のフラットな玄関(*ノωノ)
外国みたいでおっしゃれ~(^◇^)
でもどこで靴脱げばいいのかわかんなくてちょっと戸惑いますね 笑

玄関に収納がたっくさんあって、
100足くらいは靴が置けそうなかんじでした!( ゚Д゚)
さて気になるリビングは…

遮るものがなくて開放感抜群(*^^)v
ただ、バルコニー側は道路を挟んでマンション建設中なので、
眺望がすこ~し変わるかもしれませんが…

とはいえ、なんといってもバルコニーがとっても広くて気持ちいい★
家庭菜園でトマトやキュウリ、スナップエンドウなんかも作ったりできそうですね~( *´艸`)


次はキッチン!

3口コンロに、広い食洗器に、おっきなグリルも完備!

そしてキッチンの先には…

もう一つのバルコニーが!
ここにすべてのエアコンの室外機が置かれていたので
リビングのバルコニーの生活感が消えていたんですね!
なるほど…( ..)φメモメモ
そして洗面台とお風呂。


洗面台の石の感じといい、お風呂のガラス戸といい、
ホテルみたいで素敵でした(*’▽’)
最後にリビングでひなたぼっこしながら2人でパチリ★

広すぎず、狭すぎず、新婚さんや小さなお子さんのいるファミリーにはぴったりの物件だと思いました♪
そして広いバルコニーやキッチンの充実した設備など随所に高級感★
とっても素敵な物件でした!
児童館も公園も近いことも子育て中のファミリーには決め手になるのでは?!
(パークハウス一番町901号室の詳細はこちら)

以上、番町探検レポーターのユカとりんかでした(*’ω’*)























